| 微信 : Adelaidehelp 联系邮箱 : [email protected] 开启辅助访问
  • 打印 上一主题 下一主题

    [CITY] 阿德莱德市中心商业空间出租

    [复制链接]
    跳转到指定楼层
    楼主
    zhuangjieooi 发表于 9-7-2025 22:37:23
    1523 1

    本内容为网友发布信息,仅代表原作者观点,不代表本平台立场。

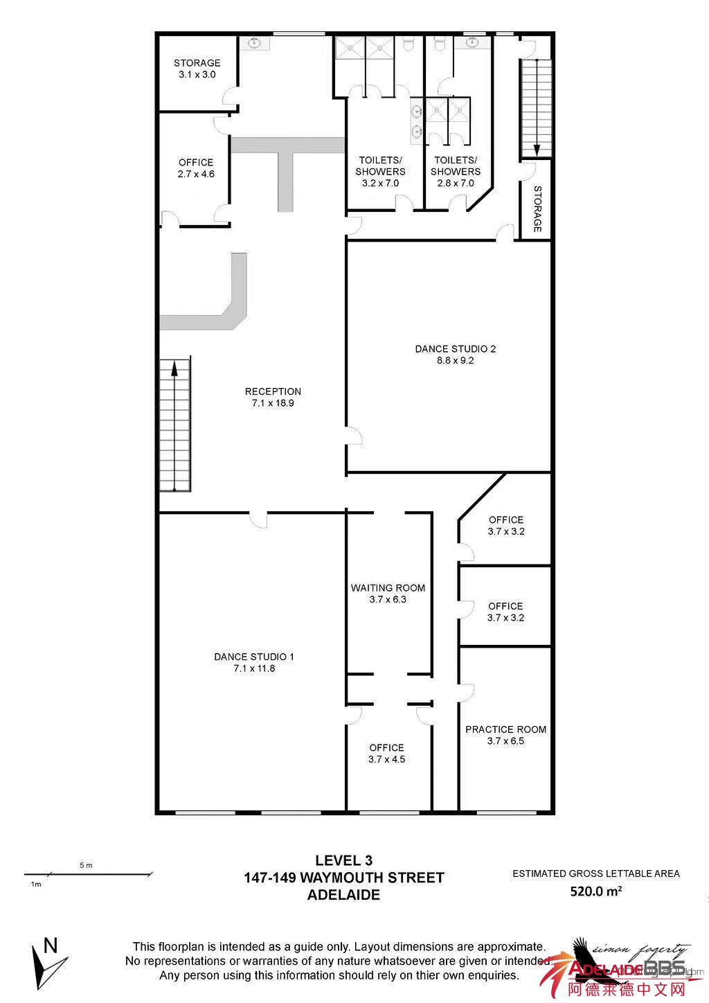
    二楼 & 三楼,约500㎡/层,大采光大空间!
    现有市中心商业楼二楼与三楼对外招租,每层约500平方米,空间方正开阔,采光极佳,适合多种商业用途。
    📍 优越地段,周边密集公寓楼,常驻人口多,流动客群稳定
    ✅ 每层约500㎡,适合改装,自由分区
    ✅ 可整层承租或部分分租,租赁方式灵活
    ✅ 适用于办公、培训机构、健身/瑜伽、设计工作室、美业、展厅、茶馆、轻餐饮等
    欢迎有商业计划的朋友前来洽谈,看场地议价格。
    📩 有意请私信或致电 0431 528 058 预约看房。

    level 3.jpg (113.28 KB, 下载次数: 94)

    level 3.jpg

    level 2.jpg (152.82 KB, 下载次数: 102)

    level 2.jpg

    BBS提醒: 请避免提前支付订金、押金等任何费用,请与对方当面沟通,确认资质并看清条款。谨防上当受骗。

    免责声明: 本网站所提供的信息,只供参考之用。本网站不保证信息的准确性、有效性、及时性和完整性。本网站及其雇员一概毋须以任何方式就任何信息传递或传送的失误、不准确或错误,对用户或任何其他人士负任何直接或间接责任。在法律允许的范围内,本网站在此声明,不承担用户或任何人士就使用或未能使用本网站所提供的信息或任何链接所引致的任何直接、间接、附带、从属、特殊、惩罚性或惩戒性的损害赔偿。

    收藏收藏 顶 踩
    回复

    使用道具 举报

    您需要登录后才可以回帖 登录 | 注册

    本版积分规则

    其他网友还看了 ...

    登录发布 生活求助 搜索

    Copyright @ 2022 AdelaideBBS.com. All rights reserved. User Agreement

    客服号

    公众号