| 微信 : Adelaidehelp 联系邮箱 : [email protected] 开启辅助访问
  • 【Harcourts 美家】唐人街鑫海公寓两室一卫带家具整租

    浏览人气 : 520
    410/180 Morphett Street, Adelaide SA 5000 Property Number : 1617269 价格 : 650 2 1 0

    Hoi Man Wong

    联系方式 :
    0416145604

    看房时间

    看房时间1 :

    看房时间2 :

    地理位置
    打印 上一主题 下一主题

    【Harcourts 美家】唐人街鑫海公寓两室一卫带家具整租

    [复制链接]

    本内容为网友发布信息,仅代表原作者观点,不代表本平台立场。

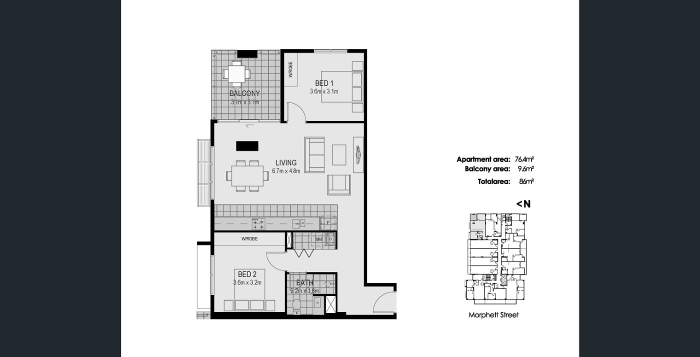
    位于Morphett Street,这套两卧室公寓距离阿德莱德市中心中央市场仅数分钟路程,周边有餐厅、杂货店等各种生活设施. 能走路到大学West Campus 这是一套不容错过的住宅!
    $650/周租金

    房屋特点包括
    • 开放式客厅与厨房设计, 烤箱洗碗机一应俱全 储物空间充裕
    • 两间卧室面积适中,均配有内置衣柜
    • 现代化厨房,配备燃气灶、烤箱和洗碗机
    • 全屋中央空调
    • 独立洗衣房

    租賃資料
    • 家具 - 全套家具齐全
    • 押金 - 相当于4周租金
    • 租期 - 优先考虑12个月长期租约

    隨時可入住

    main.jpg (121.91 KB, 下载次数: 0)

    main.jpg

    image8.jpg (127.73 KB, 下载次数: 0)

    image8.jpg

    floorplan1.jpg (49.89 KB, 下载次数: 0)

    floorplan1.jpg

    Image_20260415145325_118_2.jpg (86.42 KB, 下载次数: 4)

    Image_20260415145325_118_2.jpg

    Image_20260415145327_119_2.jpg (114.93 KB, 下载次数: 3)

    Image_20260415145327_119_2.jpg

    Image_20260415145329_120_2.jpg (99.16 KB, 下载次数: 3)

    Image_20260415145329_120_2.jpg

    Image_20260415145331_121_2.jpg (108.92 KB, 下载次数: 2)

    Image_20260415145331_121_2.jpg

    Image_20260415145333_122_2.jpg (113.9 KB, 下载次数: 5)

    Image_20260415145333_122_2.jpg

    image6.jpg (57.83 KB, 下载次数: 0)

    image6.jpg

    Image_20260415145337_124_2.jpg (138.77 KB, 下载次数: 5)

    Image_20260415145337_124_2.jpg

    image5.jpg (38.48 KB, 下载次数: 0)

    image5.jpg

    WeChat Image_20230105130814.jpg (61.09 KB, 下载次数: 0)

    WeChat Image_20230105130814.jpg

    BBS提醒: 请避免提前支付订金、押金等任何费用,请与对方当面沟通,确认资质并看清条款。谨防上当受骗。

    免责声明: 本网站所提供的信息,只供参考之用。本网站不保证信息的准确性、有效性、及时性和完整性。本网站及其雇员一概毋须以任何方式就任何信息传递或传送的失误、不准确或错误,对用户或任何其他人士负任何直接或间接责任。在法律允许的范围内,本网站在此声明,不承担用户或任何人士就使用或未能使用本网站所提供的信息或任何链接所引致的任何直接、间接、附带、从属、特殊、惩罚性或惩戒性的损害赔偿。

    收藏收藏 顶 踩
    回复

    使用道具 举报

    您需要登录后才可以回帖 登录 | 注册

    本版积分规则

    其他网友还看了 ...

    Copyright @ 2022 AdelaideBBS.com. All rights reserved. User Agreement

    客服号

    公众号