| 微信 : Adelaidehelp 联系邮箱 : [email protected] 开启辅助访问
  • 【Harcourts St Peters】稀缺大地块 · 宽敞空间 · 未 ...

    浏览人气 : 1926
    44 Shakespeare Avenue, Plympton Park, SA 5038 Property Number : 1608308 价格 : 2026年3月8日上午11:30现场拍卖 5 2 4

    William&Chuan

    联系方式 :
    0402427738 或 0451900109

    看房时间

    看房时间1 :

    看房时间2 :

    地理位置
    打印 上一主题 下一主题

    【Harcourts St Peters】稀缺大地块 · 宽敞空间 · 未来潜力兼备

    [复制链接]

    本内容为网友发布信息,仅代表原作者观点,不代表本平台立场。

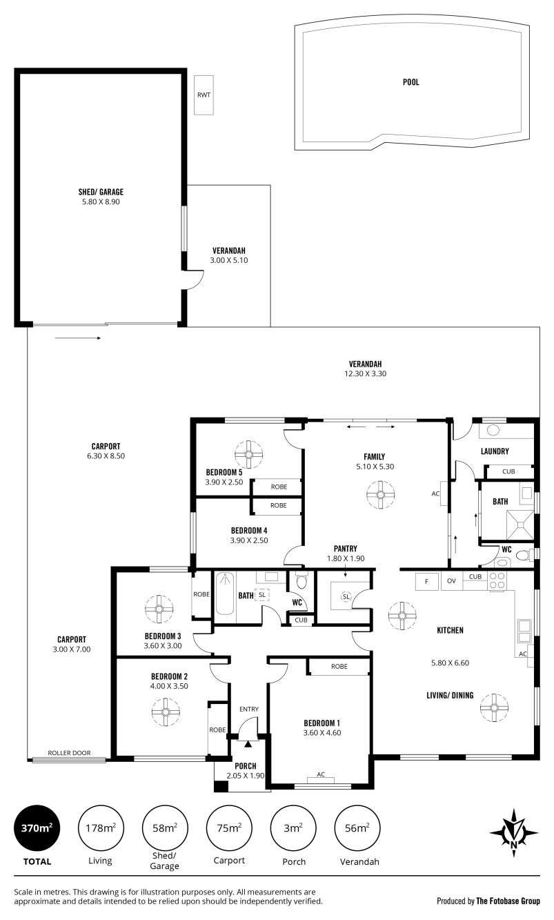
    坐落于备受青睐的Plympton Park核心地段,这套五房家庭住宅占地约847平方米,兼具宽敞空间、灵活格局与未来发展潜力(STCC)。在成熟且交通便捷的城市近郊区域,如此规模的大地块愈发稀缺,既可满足大家庭自住需求,也为未来提升或再规划提供可能。

    住宅内部布局实用合理,设有多个生活区域,既能满足家庭成员互动,也能保留必要的私密空间。开放式客厅与餐厅为家庭生活核心区域,搭配现代厨房设计,配备石材台面、中岛操作台及步入式储藏室,兼顾功能性与社交属性。第二客厅进一步提升居住灵活度,适合打造影音室、儿童活动区或多代同堂的独立生活空间。
    五间卧室均配有内置衣柜与吊扇,设有两间浴室(后侧浴室已翻新升级),另设独立洗衣房。分体式空调系统、太阳能系统及电路升级等实用配置,为日常生活带来舒适与节能保障。
    户外空间同样出色,大面积带顶娱乐区域连接宽阔后院草坪,适合家庭聚会与休闲活动。双车道设计、遥控车棚及大型车库/工作间提供充裕停车与储物空间,可容纳多辆车辆、房车或船只,在此地段尤为难得。

    地理位置优越,便捷连接阿德莱德CBD与Glenelg海滨,靠近Westfield Marion购物中心及阿德莱德机场,周边公共交通、公园绿地及优质学校环绕,是兼具生活便利与长期价值的理想置业选择。

    • 占地约847㎡大地块,具未来发展潜力(STCC)
    • 五间卧室,均配备内置衣柜与吊扇
    • 两间浴室,后侧浴室已翻新
    • 多个生活区域,布局灵活实用
    • 现代厨房,配石材台面、中岛及步入式储藏室
    • 分体式空调系统
    • 太阳能发电系统
    • 大面积带顶户外娱乐空间
    • 双车道设计,停车位充裕
    • 遥控车棚及大型车库/工作间

    有意请联系William或Chuan

    BBS提醒: 请避免提前支付订金、押金等任何费用,请与对方当面沟通,确认资质并看清条款。谨防上当受骗。

    免责声明: 本网站所提供的信息,只供参考之用。本网站不保证信息的准确性、有效性、及时性和完整性。本网站及其雇员一概毋须以任何方式就任何信息传递或传送的失误、不准确或错误,对用户或任何其他人士负任何直接或间接责任。在法律允许的范围内,本网站在此声明,不承担用户或任何人士就使用或未能使用本网站所提供的信息或任何链接所引致的任何直接、间接、附带、从属、特殊、惩罚性或惩戒性的损害赔偿。

    收藏收藏 顶 踩
    回复

    使用道具 举报

    您需要登录后才可以回帖 登录 | 注册

    本版积分规则

    其他网友还看了 ...

    Copyright @ 2022 AdelaideBBS.com. All rights reserved. User Agreement

    客服号

    公众号