| 微信 : Adelaidehelp 联系邮箱 : [email protected] 开启辅助访问
  • 艺术美学之家 恭迎下一位有品味的主人

    浏览人气 : 1309
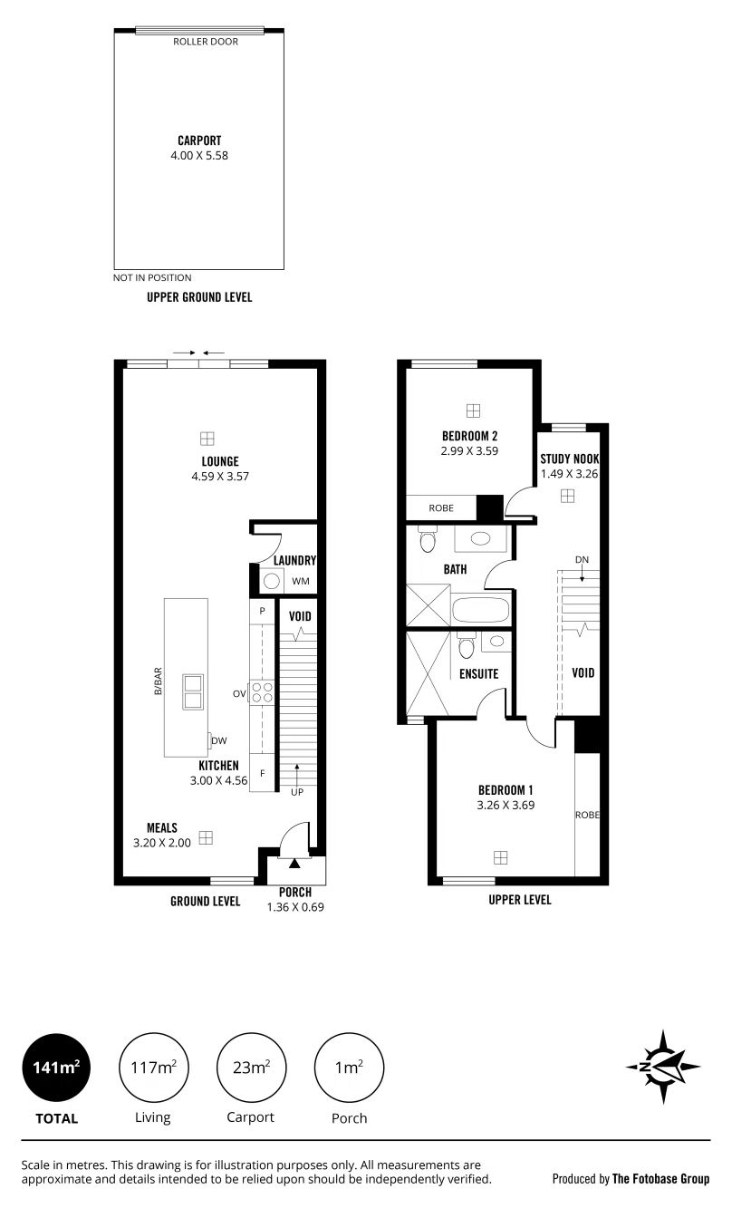
    46 Buchanan Drive, Woodforde, SA 5072 Property Number : 1617285 价格 : 795,000-840,000 2 2 1

    Daniel Yin

    联系方式 :
    0430883028

    看房时间

    看房时间1 : 联系中介

    看房时间2 :

    地理位置

    艺术美学之家 恭迎下一位有品味的主人

    [复制链接]

    本内容为网友发布信息,仅代表原作者观点,不代表本平台立场。

    坐落于备受追捧的阿德莱德东区山脚下、充满苏格兰风情且拥有露天广场与俯瞰城市天际线观景台等独特设施的Hamilton Hill小区里,46 Buchanan Dr为我们带来一套精心打造的 Torrens Title 独立产权别墅,将现代舒适与艺术美学巧妙融合。

    130A3574-min.jpg

    7283f6f5c58cad0bc272e5d85e2d3e20.jpg

    a6b38dde60af3c5ab4251d219305dca2.jpg

    全屋家具与软装一并出售,这是一次难得的拎包入住机会。每一处空间都经过现女主的悉心设计与陈设,无论自住还是投资出租,都可即刻开启理想生活。

    c1278eba8180d42729157d0662c40174.jpg

    踏入室内,迎面而来的是清新现代的居家气息:设计感家具、艺术摆件与温暖柔和的氛围彼此呼应,让整个家散发出低调而迷人的品味。

    a3e4fb87b60f2b4df2bfd90271d5ec9a.jpg

    一楼开放式生活空间,是家的灵魂所在:厨房、餐厅与客厅自然连结,在通透采光中营造出自在流畅的生活节奏,无论日常起居或亲友相聚,都恰到好处。

    现代厨房以时尚中岛台为视觉焦点,配备早餐吧座位、石材台面、高端品牌SMEG燃气灶具、洗碗机及简约流线型橱柜设计,兼具功能与美感。

    32c4793ad71cbbde6f0e9f1b445869b8.jpg

    木纹质感地板为空间增添温度,而精挑细选的家具与装饰,则让整个家呈现出优雅从容的生活态度。

    落地玻璃门将室内自然延伸至私密后院庭院,营造理想的室内外生活体验。晨起一杯咖啡,午后享受静谧时光,或周末与亲友小聚,这里皆可从容承载生活的美好。

    5677b3c4abbf388781acb36fd6793df0.jpg

    ed667469685107b122497404b5c8a9bf.jpg

    后院直达加大的车库,配备遥控卷帘门,便利与私密兼得。

    97ae8201c26135feca337c40d290ceb9.jpg

    楼上设有两间宽敞卧室,各具风格与温度。次卧色彩鲜明,充满创意与活力;主卧则拥有独立卫浴套间及内置衣柜,享受专属宁静空间。

    7ae82924be4029d60ab7c461c4f73508.jpg

    65bda73e611f6c6d861524a7f5f3245c.jpg

    楼上设有两间宽敞卧室,各具风格与温度。次卧色彩鲜明,充满创意与活力;主卧则拥有独立卫浴套间及内置衣柜,享受专属宁静空间。

    faa4aac79b1c4a4f091fd182bbf993b3.jpg

    b6a358b82b2369e7c11ec4178f1227a0.jpg

    全屋中央冷暖空调,让四季皆舒适宜居。现代格局、优质建材与完整家具配置,使这套住宅无论对于自住买家、专业人士、投资者或 Airbnb 买家而言,都极具吸引力。

    78887075984ebdb1ba448d9e37e36f33.jpg

    周边绿意环绕,优质住宅林立,生活机能成熟便利:邻近天然氧吧Morialta Conservation Park、自然徒步步道、Penfolds奔富酒庄、阿德莱德大学Magill校区、优质中小学、Magill Road核心商圈了,咖啡馆、Foodland及华人超市、GP诊所、5-10分钟车程到Firle Plaza、Norwood Parade商圈,前往阿德莱德CBD亦仅20分钟车程。

    这不仅是一套房子,更是一种有温度、有格调的生活方式,她优雅呈现,全屋配齐,静候下一位懂生活品味的主人。

    380492e15a394e7b7e9ca24fac3f6c59.jpg

    6fdfd99dcb2a4ca95d82765b48629550.jpg

    您会爱上的亮点:
    - 2018 年建成的Torrens Title独立产权现代双卧别墅
    - 全屋家具 电器 与艺术软装随房出售
    - 明亮开放式厨房/餐厅/客厅布局
    - 现代厨房配石材台面的岛台 意大利SMEG高端厨具 脱排 燃气灶 烤箱 洗碗机 一应俱全
    - 温润木纹地板与设计师风格贯穿全屋
    - 私密低维护庭院 室内外自然衔接
    - 卧室均配内置衣柜
    - 主卧带独立卫浴套间 主浴室设浴缸与独立淋浴间
    - 二楼书桌区/居家办公空间
    - 全屋中央冷暖空调
    - 6.6kW太阳能系统 节能环保
    - 入户智能无钥匙门锁+防盗门+户外摄像头
    - 加大后入式车库配遥控卷帘门 安全便利
    - 优越东区地段 近公园 奔富酒庄 紧邻Magill Rd核心商圈 Cafe 超市 各国风味餐厅 华人全科诊所 一切近在咫尺
    - 5-10分钟车程到Firle Plaza及Norwood Parade商圈 20分钟到CBD
    - 享有东区优质学区 步行至Rostrevor College / Morialta Secondary College / Stepping Stone幼儿园 / 车程1分钟到阿德莱德大学Magill校区 2分钟到Magill小学 5分钟到Pembroke中学 10分钟到StPeter's男校
    - 自住或投资皆宜的拎包入住机会
    - 更多精彩 等待您的亲临发现…

    BBS提醒: 请避免提前支付订金、押金等任何费用,请与对方当面沟通,确认资质并看清条款。谨防上当受骗。

    免责声明: 本网站所提供的信息,只供参考之用。本网站不保证信息的准确性、有效性、及时性和完整性。本网站及其雇员一概毋须以任何方式就任何信息传递或传送的失误、不准确或错误,对用户或任何其他人士负任何直接或间接责任。在法律允许的范围内,本网站在此声明,不承担用户或任何人士就使用或未能使用本网站所提供的信息或任何链接所引致的任何直接、间接、附带、从属、特殊、惩罚性或惩戒性的损害赔偿。

    回复

    使用道具 举报

    您需要登录后才可以回帖 登录 | 注册

    本版积分规则

    其他网友还看了 ...

    Copyright @ 2022 AdelaideBBS.com. All rights reserved. User Agreement

    客服号

    公众号