| 微信 : Adelaidehelp 联系邮箱 : [email protected] 开启辅助访问
  • 已售【Harcourts美家|出售】Croydon Park全能墅居|777㎡ ...

    浏览人气 : 3447
    8 Collins Street, Croydon Park, SA 5008 Property Number : 1576768 价格 : 10/08/2025 1:00 PM 现场拍卖 4 2 3

    William Bai

    联系方式 :
    0402427738

    看房时间

    看房时间1 :

    看房时间2 :

    地理位置
    打印 上一主题 下一主题

    已售【Harcourts美家|出售】Croydon Park全能墅居|777㎡臻稀地块

    [复制链接]

    本内容为网友发布信息,仅代表原作者观点,不代表本平台立场。

    10/08/2025 1:00 PM 现场拍卖
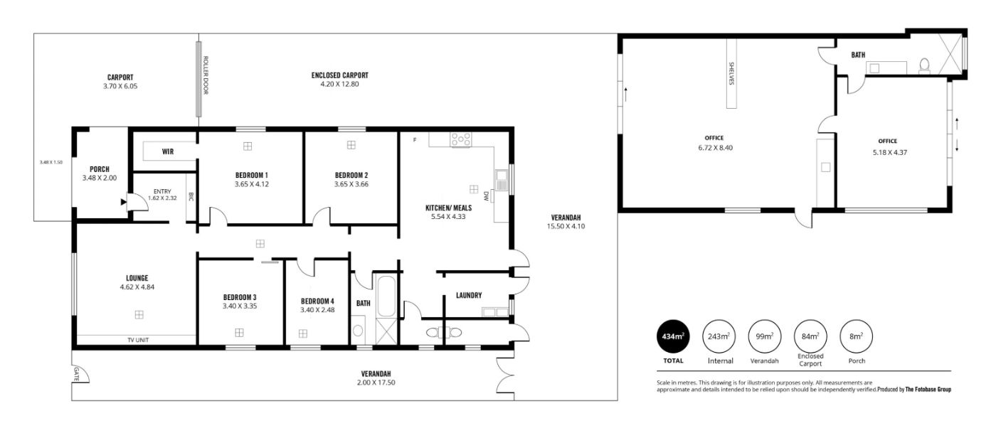
    这栋经过全面翻新、精美呈现的物业为自住业主和投资者提供了绝佳机会。占地约777平方米的宽阔地块具有分区开发潜力(STCC)。
    住宅采用开放式布局,配有设计师厨房、多个休息区,整体采用高端装修。
    休闲娱乐之余,这里更是高效工作的理想场所!与主屋仅几步之遥的独立家庭办公室/多功能娱乐区,将"居家办公空间"提升至全新境界。这里既可经营事业,也能灵活用作大家庭的生活空间。
    物业位于西部便利社区,周边生活设施一应俱全。步行即可到达优质中小学、大型购物中心、特色咖啡馆和餐厅、公共交通站点以及伊丽莎白女王医院。轻松抵达阿德莱德市中心,数分钟即可到达阿德莱德最受欢迎的海滩。
    • 全屋定制翻新,配备高品质设施和装修
    • 灵活户型设计,设有两个宽敞起居区
    • 时尚现代厨房搭配开放式餐饮娱乐区
    • 精致卫浴空间,全屋铺设现代瓷砖
    • 太阳能系统提升能源效率
    • 安全封闭式车位,多个露台享受户外时光
    • 具备分区开发潜力(STCC)-蕴含激动人心的开发机遇
    • 后院种植柠檬、柿子、柚子和葡萄藤等果树-家庭园艺和新鲜农产品爱好者的理想之选

    有意请联系William Bai

    [size=16.002px]
    [size=16.002px]


    BBS提醒: 请避免提前支付订金、押金等任何费用,请与对方当面沟通,确认资质并看清条款。谨防上当受骗。

    免责声明: 本网站所提供的信息,只供参考之用。本网站不保证信息的准确性、有效性、及时性和完整性。本网站及其雇员一概毋须以任何方式就任何信息传递或传送的失误、不准确或错误,对用户或任何其他人士负任何直接或间接责任。在法律允许的范围内,本网站在此声明,不承担用户或任何人士就使用或未能使用本网站所提供的信息或任何链接所引致的任何直接、间接、附带、从属、特殊、惩罚性或惩戒性的损害赔偿。

    收藏收藏 顶 踩
    回复

    使用道具 举报

    您需要登录后才可以回帖 登录 | 注册

    本版积分规则

    其他网友还看了 ...

    Copyright @ 2022 AdelaideBBS.com. All rights reserved. User Agreement

    客服号

    公众号