| 微信 : Adelaidehelp 联系邮箱 : [email protected] 开启辅助访问
  • 【Harcourts St Peters】Paradise三居室住宅

    浏览人气 : 3894
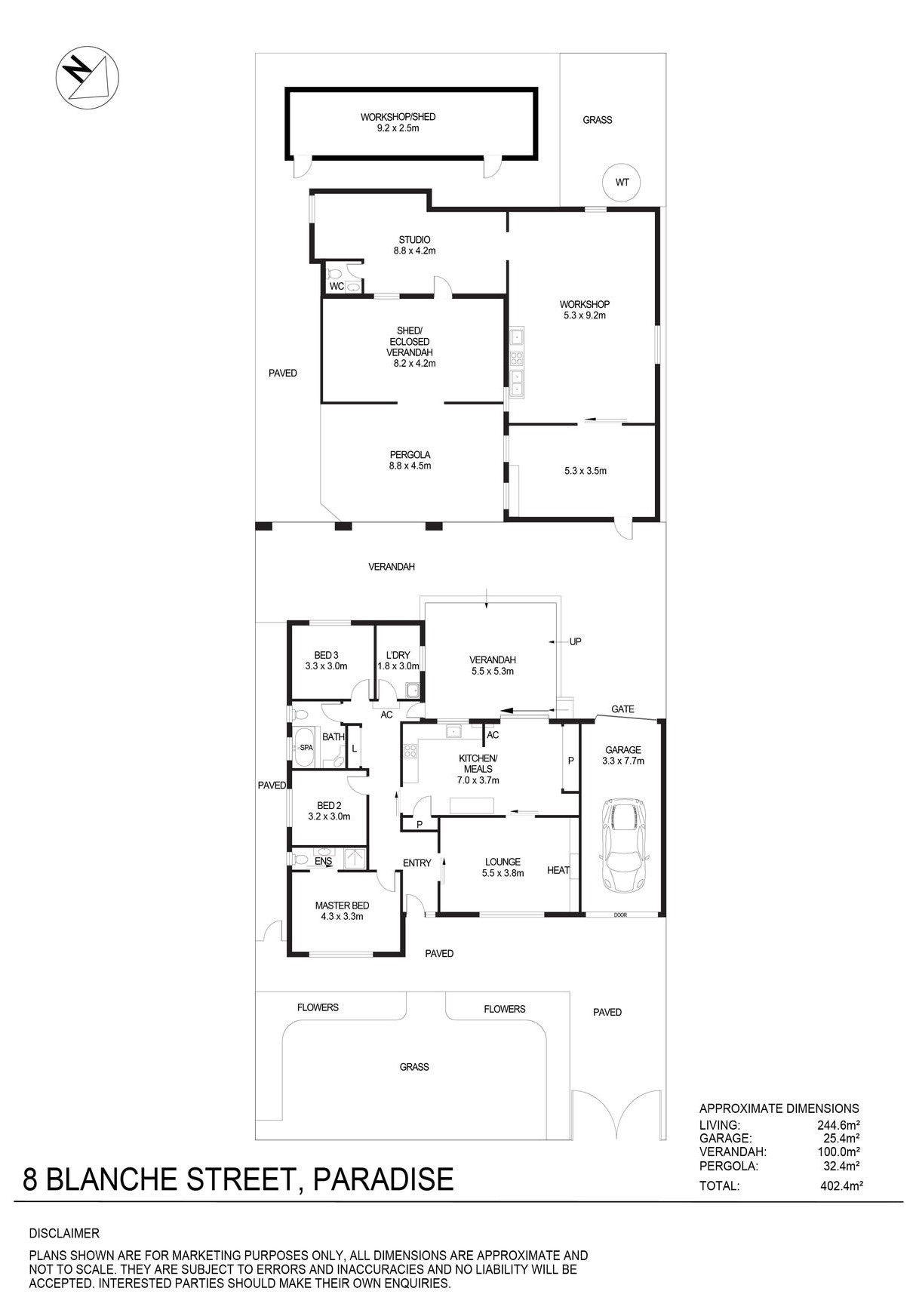
    8 Blanche Street, Paradise, SA 5075 Property Number : 1575051 价格 : 605 3 2 1

    William Bai

    联系方式 :
    0402427738

    看房时间

    看房时间1 :

    看房时间2 :

    地理位置
    打印 上一主题 下一主题

    【Harcourts St Peters】Paradise三居室住宅

    [复制链接]

    本内容为网友发布信息,仅代表原作者观点,不代表本平台立场。

    这套温馨的三居室家庭住宅位于热门Paradise区域,为您提供舒适便利的生活体验。低层设计配合功能性附属建筑,完美适合家庭生活和休闲娱乐。
    物业特色
    • 三居室两卫生间,主卧配独立卫浴
    • 宽敞明亮的开放式客厅
    • 现代化厨房配备不锈钢电器和洗碗机
    • 多个户外娱乐区域
    • 冷暖空调系统
    • 单车库加车道停车位
    • 5,000升储水箱和大型洗衣房


    黄金地段优势
    • 距离Newton Central和Gilles Plains Shopping Centre不到5分钟
    • 20分钟内可达Adelaide CBD
    • 步行2分钟到达Campbelltown Memorial Oval运动场
    • 邻近优质学校包括Charles Campbell College等多所学府
    • 便捷的公共交通和生活配套设施
    租赁信息
    租期: 12个月以上
    押金: 相当于4周租金
    水费: 租户承担所有使用费和供应费
    家具: 不包含
    注意:大型棚屋不包含在租赁范围内

    BBS提醒: 请避免提前支付订金、押金等任何费用,请与对方当面沟通,确认资质并看清条款。谨防上当受骗。

    免责声明: 本网站所提供的信息,只供参考之用。本网站不保证信息的准确性、有效性、及时性和完整性。本网站及其雇员一概毋须以任何方式就任何信息传递或传送的失误、不准确或错误,对用户或任何其他人士负任何直接或间接责任。在法律允许的范围内,本网站在此声明,不承担用户或任何人士就使用或未能使用本网站所提供的信息或任何链接所引致的任何直接、间接、附带、从属、特殊、惩罚性或惩戒性的损害赔偿。

    收藏收藏 顶 踩
    回复

    使用道具 举报

    您需要登录后才可以回帖 登录 | 注册

    本版积分规则

    其他网友还看了 ...

    Copyright @ 2022 AdelaideBBS.com. All rights reserved. User Agreement

    客服号

    公众号