| 微信 : Adelaidehelp 联系邮箱 : [email protected] 开启辅助访问
  • 已租【Harcourts美家】富人区Toorak Gardens奢华四卧豪 ...

    浏览人气 : 2750
    28 Chatsworth Grove, Toorak Gardens, SA 5065 Property Number : 1573774 价格 : 1400 4 2 8

    William

    联系方式 :
    0402427738

    看房时间

    看房时间1 :

    看房时间2 :

    地理位置
    打印 上一主题 下一主题

    已租【Harcourts美家】富人区Toorak Gardens奢华四卧豪宅整租

    [复制链接]

    本内容为网友发布信息,仅代表原作者观点,不代表本平台立场。

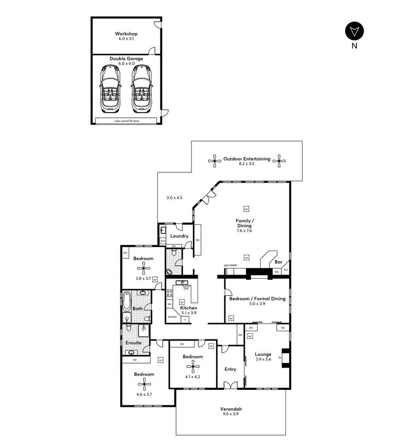
    这座精致的独立住宅坐落于阿德莱德东部最受欢迎的Toorak Gardens,地块面积宽敞达 864平方米,位于宁静绿意的街道,距离Dulwich Village、Burnside Village购物中心及多所顶级私立与公立学校仅数分钟路程。无论是环境、格局还是居住舒适度,这套房屋都体现了城市边缘生活的理想典范。

    物业亮点:

    经典石材外立面平房,内部全面翻新,优雅与舒适并存

    正门即是宏伟的正式客厅与餐厅,配有原始玻璃推拉门与壁炉

    实木地板与天然石板地面相结合,尽显品质感

    家庭区域宽敞明亮,开放式设计,配备定制实木吧台

    现代厨房配置:石质台面、Bosch洗碗机、Smeg烤箱和灶具

    主卧带观景窗、内置衣柜和现代化套间浴室(配备石质洗手台和电热毛巾架)

    其他卧室尺寸宽敞,配有衣柜储物空间

    第二间浴室为全瓷砖装修,带浴缸和额外客用洗手间

    后院设有全覆盖式户外娱乐区,带天窗、吊扇和加热灯,全年适用

    精美后院景观由Peter Stubbs设计,绿篱和草坪打理得体

    超长车道可停多车,附带独立双车库(带电动门)

    配备6kW太阳能系统,节能环保

    管道式中央冷暖空调,四季宜居

    Plantation百叶窗,提升整体格调

    专属洗衣间,功能齐全

    就学便利,划入Rose Park小学与Marryatville高中学区

    靠近 St Ignatius、Pembroke、Loreto、Mary MacKillop 等私校

    租赁信息:

    *押金:4周租金

    *租期:12个月优先

    *水费:租客需支付水费与供应费

    有意请联系William:

























































    2019950020_6_1_250424_060223-w4239-h2823.png (110.35 KB, 下载次数: 213)

    2019950020_6_1_250424_060223-w4239-h2823.png

    2019950020_7_1_250424_060223-w4231-h2828.png (136.8 KB, 下载次数: 230)

    2019950020_7_1_250424_060223-w4231-h2828.png

    2019950020_8_1_250424_060223-w4239-h2826.png (102.53 KB, 下载次数: 221)

    2019950020_8_1_250424_060223-w4239-h2826.png

    2019950020_9_1_250424_060223-w4239-h2827.png (136.67 KB, 下载次数: 233)

    2019950020_9_1_250424_060223-w4239-h2827.png

    BBS提醒: 请避免提前支付订金、押金等任何费用,请与对方当面沟通,确认资质并看清条款。谨防上当受骗。

    免责声明: 本网站所提供的信息,只供参考之用。本网站不保证信息的准确性、有效性、及时性和完整性。本网站及其雇员一概毋须以任何方式就任何信息传递或传送的失误、不准确或错误,对用户或任何其他人士负任何直接或间接责任。在法律允许的范围内,本网站在此声明,不承担用户或任何人士就使用或未能使用本网站所提供的信息或任何链接所引致的任何直接、间接、附带、从属、特殊、惩罚性或惩戒性的损害赔偿。

    收藏收藏 顶 踩
    回复

    使用道具 举报

    您需要登录后才可以回帖 登录 | 注册

    本版积分规则

    其他网友还看了 ...

    Copyright @ 2022 AdelaideBBS.com. All rights reserved. User Agreement

    客服号

    公众号