| 微信 : Adelaidehelp 联系邮箱 : [email protected] 开启辅助访问
  • 【Harcourts美家|出售】Klemzig三房别墅 现代设计×黄金 ...

    浏览人气 : 3741
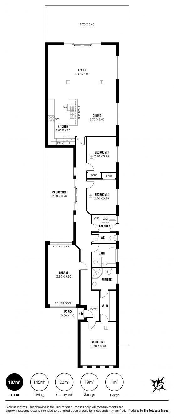
    11 Fourth Avenue Klemzig, SA 5087 Property Number : 1565500 价格 : $875,000 - $915,000 3 2 3

    William Bai

    联系方式 :
    0402427738

    看房时间

    看房时间1 :

    看房时间2 :

    地理位置

    【Harcourts美家|出售】Klemzig三房别墅 现代设计×黄金区位 | 步行至O'Bahn快速公交

    [复制链接]

    本内容为网友发布信息,仅代表原作者观点,不代表本平台立场。

    指导价:$875,000 - $915,000

    您是否在寻找一处集现代雅致、实用设计与黄金地段于一身的理想居所?这座坐落于第四大道的精美庭院住宅,将为家庭、专业人士及投资者提供难得机遇。
    现代设施、宽敞布局与低维护生活的完美结合,让这处房产兼具格调与便利。步行即可到达公共交通、葱郁公园及OBahn快速公交系统,轻松畅达市中心及周边城区。现代化厨房配备高品质不锈钢电器,包括燃气灶具及全新洗碗机,让烹饪与清洁变得轻松惬意。
    无论是工作通勤还是周末休闲,这一优越区位都能为您实现便捷与宁静的完美平衡。

    • 宽敞主卧套间配备独立卫浴及超大步入式衣帽间
    • 次卧与第三卧室均设内置衣柜,满足储物需求
    • 开放式客厅与餐厅无缝衔接时尚厨房,尽享聚会乐趣
    • 现代化厨房配备高品质不锈钢电器(含燃气灶及全新洗碗机),储物空间充裕
    • 中央逆循环空调系统保障四季舒适
    • 客厅区域铺设悬浮式木地板,卧室采用舒适加厚地毯
    • 低维护景观庭院,尽享自然之美
    • 环保雨水收集系统,践行可持续生活理念
    • 配备通道式单车库,可直达第二庭院
    • 黄金地段,步行可达公交站点、公园绿地及OBahn快速公交

    有意请联系William
    image.png
    image.png image.png image.png image.png image.png image.png image.png image.png image.png image.png image.png image.png image.png

    BBS提醒: 请避免提前支付订金、押金等任何费用,请与对方当面沟通,确认资质并看清条款。谨防上当受骗。

    免责声明: 本网站所提供的信息,只供参考之用。本网站不保证信息的准确性、有效性、及时性和完整性。本网站及其雇员一概毋须以任何方式就任何信息传递或传送的失误、不准确或错误,对用户或任何其他人士负任何直接或间接责任。在法律允许的范围内,本网站在此声明,不承担用户或任何人士就使用或未能使用本网站所提供的信息或任何链接所引致的任何直接、间接、附带、从属、特殊、惩罚性或惩戒性的损害赔偿。

    回复

    使用道具 举报

    您需要登录后才可以回帖 登录 | 注册

    本版积分规则

    其他网友还看了 ...

    Copyright @ 2022 AdelaideBBS.com. All rights reserved. User Agreement

    客服号

    公众号