| 微信 : Adelaidehelp 联系邮箱 : [email protected] 开启辅助访问
  • 【Harcourts美家】东区Hectorville四房两卫双车库,独立 ...

    浏览人气 : 3507
    1A Kelvin Avenue, Hectorville, SA 5073 Property Number : 1556032 价格 : 02/03/2025 11:30AM 现场拍卖 4 2 4

    William & Susu

    联系方式 :
    0402 427 738 or 0452 477 783

    看房时间

    看房时间1 :

    看房时间2 :

    地理位置
    打印 上一主题 下一主题

    【Harcourts美家】东区Hectorville四房两卫双车库,独立产权优质大宅

    [复制链接]

    本内容为网友发布信息,仅代表原作者观点,不代表本平台立场。

    02/03/2025 11:30AM 现场拍卖

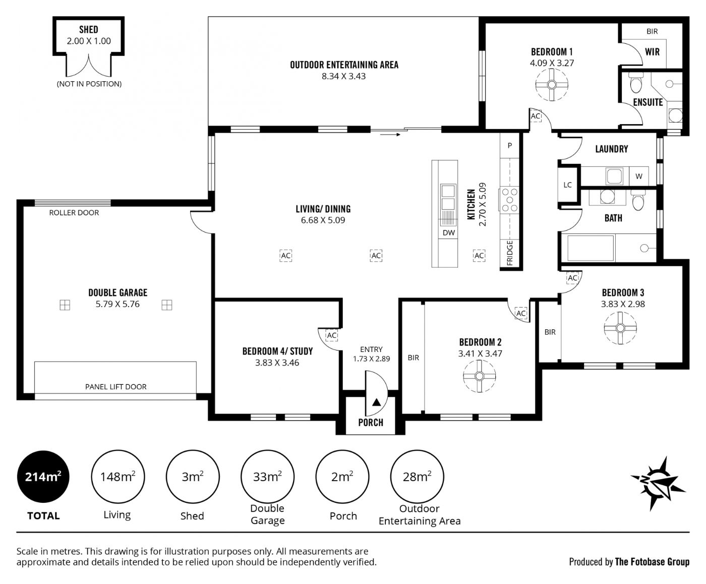
    位于绿树成荫的静街,近Firle shopping center,餐厅咖啡,东区Pembroke,Magill等名校
    优秀的23米面宽,遥控大门,保安系统,双车库带Drive through到后院,共5个车位。
    新款大金中央空调带手机遥控,6KW太阳能,EV电动车充电器一应俱全。
    主卧带卫生间入墙柜,其它三个卧室宽敞舒适,彩光优秀。
    后院配有30平米凉亭,适合室外用餐和BBQ,望向安静优美的草坪。
    房主精心呵护,洁净如新,安静私密,适合全家安心入住!

    有意请联系William或Susu (加微信备注地址)


    BBS提醒: 请避免提前支付订金、押金等任何费用,请与对方当面沟通,确认资质并看清条款。谨防上当受骗。

    免责声明: 本网站所提供的信息,只供参考之用。本网站不保证信息的准确性、有效性、及时性和完整性。本网站及其雇员一概毋须以任何方式就任何信息传递或传送的失误、不准确或错误,对用户或任何其他人士负任何直接或间接责任。在法律允许的范围内,本网站在此声明,不承担用户或任何人士就使用或未能使用本网站所提供的信息或任何链接所引致的任何直接、间接、附带、从属、特殊、惩罚性或惩戒性的损害赔偿。

    收藏收藏 顶 踩
    回复

    使用道具 举报

    您需要登录后才可以回帖 登录 | 注册

    本版积分规则

    其他网友还看了 ...

    Copyright @ 2022 AdelaideBBS.com. All rights reserved. User Agreement

    客服号

    公众号