| 微信 : Adelaidehelp 联系邮箱 : [email protected] 开启辅助访问
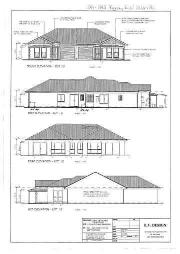
  • 541 Regency Road SEFTON PARK 成为搬进这套半独立房屋的第一个主人(目前正在建设中

    查看数: 2177 | 评论数: 0 | 收藏 0
    关灯 | 提示:支持键盘翻页<-左 右->
      组图打开中,请稍候......
    发布时间: 23-7-2012 19:27

    正文摘要:

    541 Regency Road SEFTON PARKPrice: 479000Bedrooms BathroomsToilets Garages 全新 成为搬进这套半独立房屋的第一个主人(目前正在建设中)。提供私人入口大厅、主屋顶下可从内部进入的单车库、三间卧室、主卧配有 ...

    回复

    Copyright @ 2022 AdelaideBBS.com. All rights reserved. User Agreement

    客服号

    公众号