| 微信 : Adelaidehelp 联系邮箱 : [email protected] 开启辅助访问
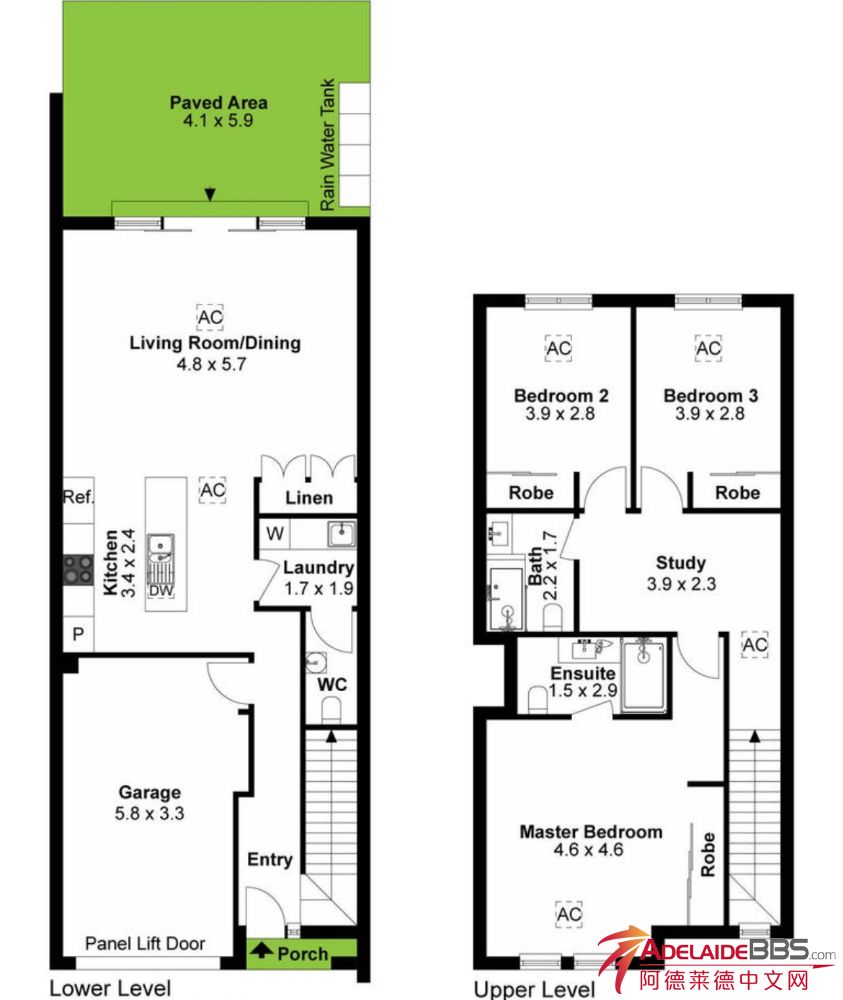
  • $300主卧独立卫浴近Flinders 3室2.5卫的To

    查看数: 1044 | 评论数: 1 | 收藏 0
    关灯 | 提示:支持键盘翻页<-左 右->
      组图打开中,请稍候......
    发布时间: 9-12-2025 14:14

    正文摘要:

    $300主卧独立卫浴近Flinders 3室2.5卫的Townhouse带家具 出租的是Master Bedroom的主卧(4.6m × 4.6m)带卫生间 ensuite (1.5m × 2.9m) 租金是$300/周不包bills(账单平摊平均每人每周大概$35) 2026年1月16 ...

    回复

    DrSteven 发表于 9-12-2025 14:15:08
    Dryongkang

    Copyright @ 2022 AdelaideBBS.com. All rights reserved. User Agreement

    客服号

    公众号