| 微信 : Adelaidehelp 联系邮箱 : [email protected] 开启辅助访问
  • Flinders 主卧出租Marion 购物中心旁3室2

    查看数: 1547 | 评论数: 1 | 收藏 0
    关灯 | 提示:支持键盘翻页<-左 右->
      组图打开中,请稍候......
    发布时间: 20-11-2025 05:52

    正文摘要:

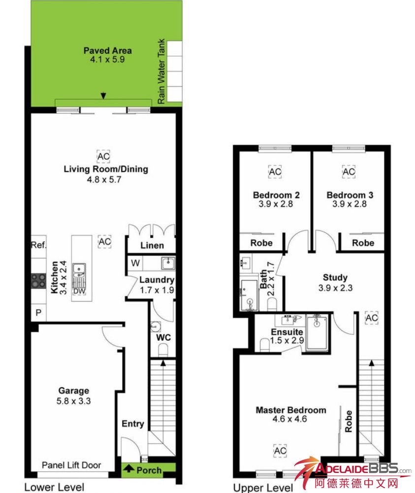
    Flinders 主卧出租Marion 购物中心旁 3室2.5卫的Townhouse 带家具 开车到 Flinders 大学只要5分钟,到CBD要20分钟 出租的是 Master Bedroom的主卧(4.6m × 4.6m) 带 ensuite 卫生间(1.5m x 2.9m) 租金是$320 ...

    回复

    DrSteven 发表于 20-11-2025 05:52:39
    wx:
    Dryongkang

    Copyright @ 2022 AdelaideBBS.com. All rights reserved. User Agreement

    客服号

    公众号