| 微信 : Adelaidehelp 联系邮箱 : [email protected] 开启辅助访问
  • 【近city,Mile End Townhouse好房出租(整

    查看数: 2696 | 评论数: 2 | 收藏 0
    关灯 | 提示:支持键盘翻页<-左 右->
      组图打开中,请稍候......
    发布时间: 16-5-2025 22:01

    正文摘要:

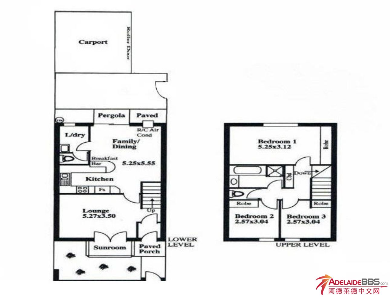
    已租【近city,Mile End Townhouse好房出租(整租)】6月20日可入住。 房间情况:三间卧室(1主2次),每个房间都有衣柜,1客厅,1个浴室,2个卫生间,2个停车位。两个房间配有queen size bed及部分家具、家电。每个 ...

    回复

    89331371 发表于 22-5-2025 18:57:48
    已租求删帖
    89331371 发表于 19-5-2025 14:26:06
    已租。

    Copyright @ 2022 AdelaideBBS.com. All rights reserved. User Agreement

    客服号

    公众号