| 微信 : Adelaidehelp 联系邮箱 : [email protected] 开启辅助访问
  • 【Harcourts美家】Tranmere优质家庭住宅|东区安静生活 ...

    浏览人气 : 71
    7 Magarey Avenue Tranmere, SA 5073 Property Number : 1617291 价格 : $750/周 3 2 4

    William Bai

    联系方式 :
    0402427738

    看房时间

    看房时间1 :

    看房时间2 :

    地理位置
    打印 上一主题 下一主题

    【Harcourts美家】Tranmere优质家庭住宅|东区安静生活|空间宽敞

    [复制链接]

    本内容为网友发布信息,仅代表原作者观点,不代表本平台立场。

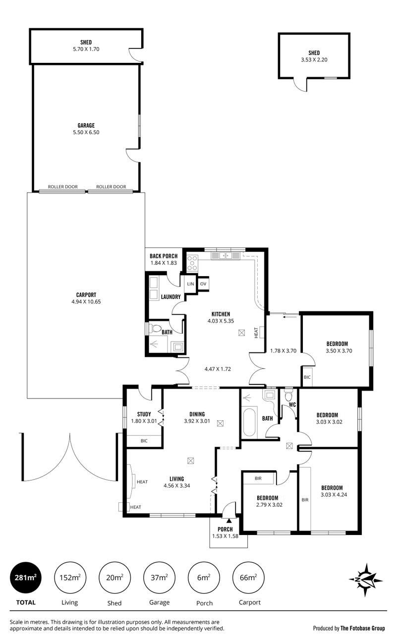
    位于阿德莱德热门东区Tranmere,这套整洁舒适的住宅为租客提供了兼具空间与便利的生活方式,非常适合家庭或上班族长期居住。整体户型设计合理,采光充足,居住氛围温馨舒适。
    室内拥有宽敞的客厅与餐厅区域,空间开阔,既适合日常休息,也方便朋友聚会。厨房配置实用,拥有充足的储物空间与操作台面,能够满足日常烹饪需求。卧室面积宽敞、采光良好,也可灵活作为书房或居家办公空间使用。中央浴室布局合理,使用方便。
    室外配有易打理的院子,无需花费太多时间维护,同时保留了基本的户外活动空间。房屋提供安全停车位,并有额外门前停车空间,日常出行更加便利。
    地理位置优越,靠近公园、优质学校及公共交通,生活便利。开车几分钟即可到达Firle Plaza和Newton Village购物中心,前往阿德莱德CBD也非常方便。

    • 卧室宽敞,采光良好
    • 厨房储物充足,操作空间大
    • 开放式客厅与餐厅布局
    • 中央浴室,设计实用
    • 提供安全车位 + 额外门前停车空间
    • 院子易打理,适合轻松生活
    • 临近公园、学校及公共交通
    • 生活便利,靠近大型购物中心

    • 不带家具
    • 优先考虑12个月租期

    有意请联系William

    BBS提醒: 请避免提前支付订金、押金等任何费用,请与对方当面沟通,确认资质并看清条款。谨防上当受骗。

    免责声明: 本网站所提供的信息,只供参考之用。本网站不保证信息的准确性、有效性、及时性和完整性。本网站及其雇员一概毋须以任何方式就任何信息传递或传送的失误、不准确或错误,对用户或任何其他人士负任何直接或间接责任。在法律允许的范围内,本网站在此声明,不承担用户或任何人士就使用或未能使用本网站所提供的信息或任何链接所引致的任何直接、间接、附带、从属、特殊、惩罚性或惩戒性的损害赔偿。

    收藏收藏 顶 踩
    回复

    使用道具 举报

    您需要登录后才可以回帖 登录 | 注册

    本版积分规则

    其他网友还看了 ...

    Copyright @ 2022 AdelaideBBS.com. All rights reserved. User Agreement

    客服号

    公众号