| 微信 : Adelaidehelp 联系邮箱 : [email protected] 开启辅助访问
  • 【Harcourts美家|出售】宽敞舒适三房别墅,生活理想之选

    浏览人气 : 3035
    97 Nelson Road, VALLEY VIEW, SA 5093 Property Number : 1556790 价格 : 01/03/2025 上午11:30现场拍卖 3 1 4

    Gloria Ye

    联系方式 :
    0430 043 003

    看房时间

    看房时间1 :

    看房时间2 :

    地理位置

    【Harcourts美家|出售】宽敞舒适三房别墅,生活理想之选

    [复制链接]

    本内容为网友发布信息,仅代表原作者观点,不代表本平台立场。

    01/03/2025 上午11:30现场拍卖

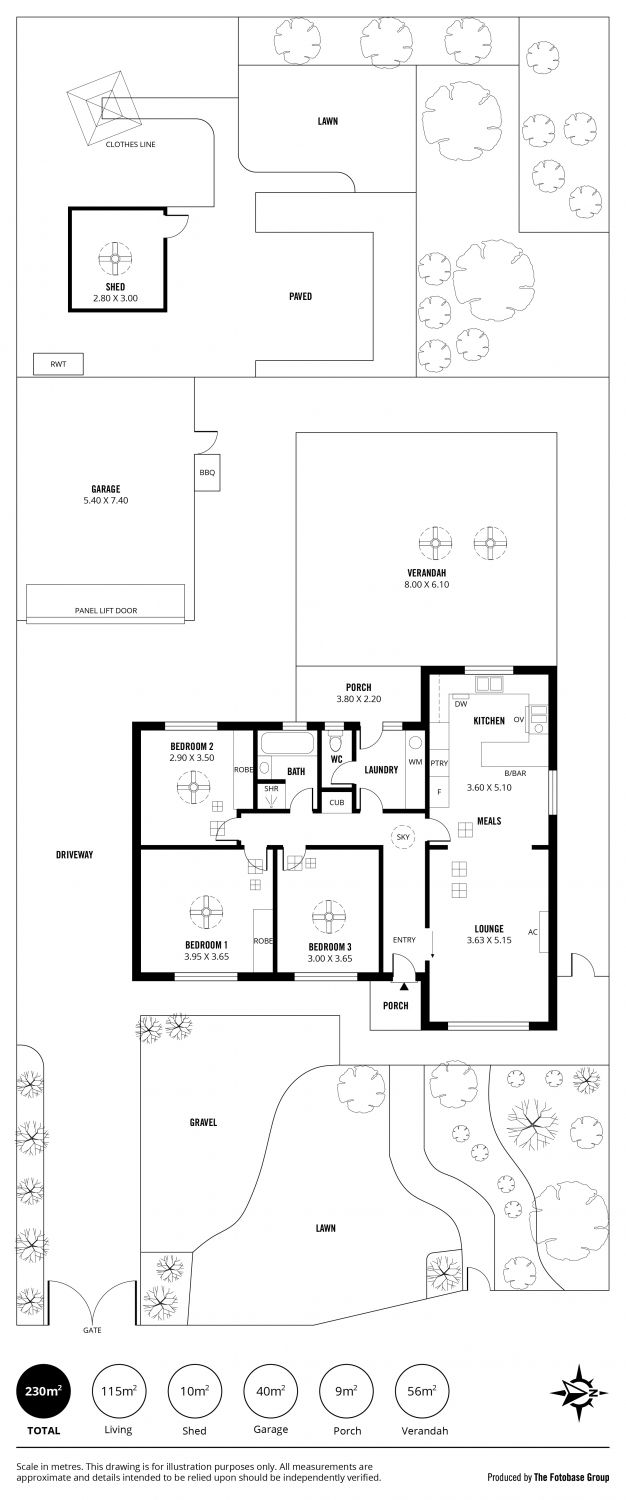
    这座坚固的砖房坐落在约 692 平方米的宽敞地块上,为家庭提供充裕的生活空间,并具备未来升级的潜力。房屋设有三间舒适的卧室,其中两间配有内置衣柜。浴室设计实用,带独立淋浴和浴缸,另有独立卫生间和带外部通道的洗衣房,方便日常使用。此外,5.2kW 太阳能系统有效降低能耗,让生活更加环保。
    居住空间温馨宜人,宽敞的客厅铺设全新地板,大幅观景窗让自然光洒满室内,营造明亮通透的氛围。相邻的厨房近期翻新,保养良好,配备近新不锈钢电器、转角储物柜,以及燃气与电力结合的灶具,为烹饪带来更多灵活性。开放式布局使客厅与餐厅无缝衔接,让生活更加自在。
    户外空间同样出色,宽大的遮阳露台被郁郁葱葱的绿植环绕,是放松身心或招待亲友的理想场所。独立烧烤区更添户外生活乐趣。超大双车库提供安全停车空间,并设有额外储物区域。车库后方还有一间独立书房或休闲区,带吊扇,可根据需求灵活使用。

    • 三间宽敞卧室,其中两间配有内置衣柜
    • 近期翻新厨房,配备近新不锈钢电器、转角储物柜和燃气/电力一体灶具
    • 开放式设计,自然光充足,空间流畅衔接
    • 全新地板铺设,现代简约风格
    • 宽敞客厅,大幅观景窗带来充足采光
    • 浴室设有独立淋浴、浴缸和独立卫生间
    • 实用洗衣房,带外部通道,方便日常使用
    • 宽大遮阳露台,绿意环绕,营造宁静休闲空间
    • 独立烧烤区,打造轻松惬意的户外生活
    • 超大双车库,提供安全停车和额外储物空间
    • 车库后方设独立书房/休闲区,带吊扇,可灵活利用
    • 5.2kW 太阳能系统,节能环保
    • 位置优越,临近学校、公园和购物中心,生活便捷

    有意请联系Gloria
    035912flu8idjocj1jvidv.jpg
    _MG_9810a.jpg _MG_9773.jpg _MG_9785a.jpg _MG_9761.jpg _MG_9733.jpg _MG_9721a.jpg _MG_9718a.jpg _MG_9713.jpg _MG_9710.jpg _MG_9801a.jpg _MG_9804a.jpg Ic_978948.jpg

    BBS提醒: 请避免提前支付订金、押金等任何费用,请与对方当面沟通,确认资质并看清条款。谨防上当受骗。

    免责声明: 本网站所提供的信息,只供参考之用。本网站不保证信息的准确性、有效性、及时性和完整性。本网站及其雇员一概毋须以任何方式就任何信息传递或传送的失误、不准确或错误,对用户或任何其他人士负任何直接或间接责任。在法律允许的范围内,本网站在此声明,不承担用户或任何人士就使用或未能使用本网站所提供的信息或任何链接所引致的任何直接、间接、附带、从属、特殊、惩罚性或惩戒性的损害赔偿。

    回复

    使用道具 举报

    您需要登录后才可以回帖 登录 | 注册

    本版积分规则

    其他网友还看了 ...

    Copyright @ 2022 AdelaideBBS.com. All rights reserved. User Agreement

    客服号

    公众号