| 微信 : Adelaidehelp 联系邮箱 : [email protected] 开启辅助访问
  • 【东区全新】精品地块即将开建 10米或12.5米临街面 独立 ...

    浏览人气 : 6719
    Lot 39 Buchanan Drive Woodforde SA 5072 Property Number : 1207743 价格 : 联系投资顾问 3 3 1

    Ironfish

    联系方式 :
    0435 936 853

    看房时间

    看房时间1 : 联系投资顾问

    看房时间2 :

    地理位置

    【东区全新】精品地块即将开建 10米或12.5米临街面 独立产权 独栋别墅

    [复制链接]

    本内容为网友发布信息,仅代表原作者观点,不代表本平台立场。

    房源描述 main (1).jpg
    该购地建房项目将由Bradford Homes承建,其是Scott Salisbury Group的分公司,该项目是Aspire collection的一部分,由室内设计师精心打造!位于Woodfordeoffers的Hamilton Hill是一个总体规划社区,坐落于备受欢迎的东城区,是您的置业良机!Hamilton Hill位置优越,邻近市区和山丘,便捷可至市区、当地零售店和休闲机构,以及大量便利设施。 image3.jpg image4.jpg 该住宅包括3间卧室,主卧设卫浴套间,宽敞的客厅和底层,娱乐室位于1层。住宅将采用一流的装饰,定会令买家印象深刻!全包项目包括地基和土方工程津贴,提供一流的配置,安全宜居,静谧清幽。 floorplan1.jpg 项目包括:• Aspire Collection配置• 定制的Jag厨房设吊柜• 3.0米高吊顶• 所有卧室设衣柜• 门高:  2340毫米• 2.16千瓦太阳能发电板• 地面覆盖物• 双制中央空调• 等等该项目是自住者和投资者的理想之选,欢迎选购!莫失良机,欲购从速! image5.jpg
    image2.jpg


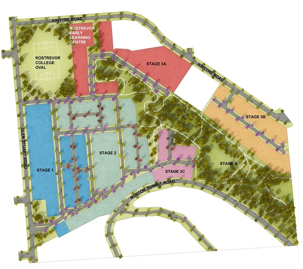
    项目状态:全新的总体规划社区 在建中 (一期售罄,二期数量有限,欲购从速
    项目属性:一手房新房 独立产权 独立别墅
    开发商:南澳Starfish Developments (屡获全澳住宅开发大奖)
    售价:土地 $320,000起, 精品别墅$479,900起 设计师公寓别墅$316,900起
    项目位置:东区 Woodforde, South Australia 5072
    市政厅:Adelaide Hills Council
    距离CBD:约10km
    WeChat Image_20180117112223.jpg
    WeChat Image_20180117112221.jpg
    WeChat Image_20180117112219.jpg
    WeChat Image_20180117112216.jpg
    WeChat Image_20180117112213.jpg

    特色一览

    • 坐拥阿德莱德的天际线
    • 背靠阿德莱德天然绿色氧吧
    • 尽享高档情调生活品质
    • 50,000平方米天然保护区公园
    • 用心规划的步行道和自行车道
    • 人性化的社区基础设施
    • 位于东区,交通便利
    • 紧邻精英学校Rostrevor College等
    • 邻近高档生活设施
    • 便捷可至中央商务区、购物区、咖啡厅区
    • 附近的Morialta Conservation公园和步行道
    • 您可在此尽享田园般的理想生活

    坐拥阿德莱德的天际线,背靠阿德莱德天然绿色氧吧,尽享高档情调生活品质 紧邻精英学校
    WeChat Image_20180117112246.jpg

    自住、投资 极佳
    中文服务请联系 0435936 853
    或扫描二维码 微信咨询

    WeChat Screenshot_20180123144723.jpg.png

    Woodforde---Shopping-Map.jpg Woodforde-Recreation.jpg Woodforde---Health-Care-Map.jpg Woodforde---Education-Map.jpg Woodforde-masterplan-Site-LR.jpg *网站图片仅供参考。Bradford Home住宅的最终售价、特色、和装饰以建筑合同为准。土地由Woodforde JV Pty Ltd推出。RLA 204004。


    BBS提醒: 请避免提前支付订金、押金等任何费用,请与对方当面沟通,确认资质并看清条款。谨防上当受骗。

    免责声明: 本网站所提供的信息,只供参考之用。本网站不保证信息的准确性、有效性、及时性和完整性。本网站及其雇员一概毋须以任何方式就任何信息传递或传送的失误、不准确或错误,对用户或任何其他人士负任何直接或间接责任。在法律允许的范围内,本网站在此声明,不承担用户或任何人士就使用或未能使用本网站所提供的信息或任何链接所引致的任何直接、间接、附带、从属、特殊、惩罚性或惩戒性的损害赔偿。

    回复

    使用道具 举报

    您需要登录后才可以回帖 登录 | 注册

    本版积分规则

    其他网友还看了 ...

    Copyright @ 2022 AdelaideBBS.com. All rights reserved. User Agreement

    客服号

    公众号