登录
找回密码
注册
|
微信 :
Adelaidehelp
联系邮箱 :
[email protected]
开启辅助访问
请
登录
后使用快捷导航
没有帐号?
注册
地产首页
Home
买房
Buy
整租
Rent
商业房产
Commercial
生意买卖
Business
已售
Sold
分租
Share
专家观点
Experts
资讯
News
我爱我家
Forum
财经金融
Forex
服务信息
Service
BBS 知道
Help
每日摇摇乐
AdelaideBBS.com_阿德莱德中文网_南澳华人论坛_阿德莱德租房_工作_交友_同城 AdelaideBBS.com中文网
»
阿村论坛
›
地产频道
›
分租求租
›
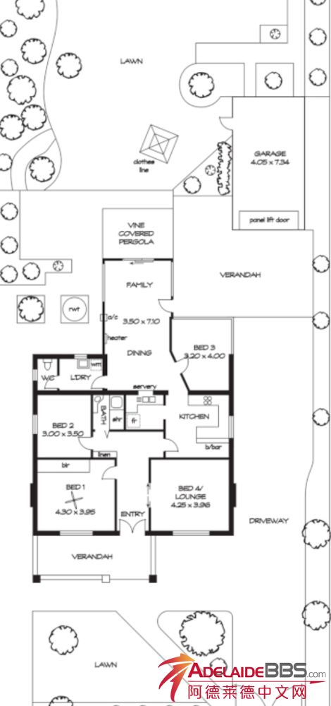
东区三房(或四房)一浴两卫house出租。近
东区三房(或四房)一浴两卫house出租。近
查看数:
2889
|
评论数:
4
|
收藏
0
关灯
|
提示:支持键盘翻页<-左 右->
帖子模式
组图打开中,请稍候......
收藏
0
顶
1
踩
0
zrliu
发布时间:
27-8-2023 10:24
正文摘要:
东区5070学区房,三房(或四房)一浴两卫house整租。步行200米到购物中心,门口有巴士站,生活非常方便。有需要的联系我。电话0401063304
回复
我是一颗星
发表于
2-9-2023 21:36:39
确实不错
zrliu
发表于
2-9-2023 10:50:31
谢谢关注!
zrliu
发表于
1-9-2023 10:11:52
谢谢关注
zrliu
发表于
28-8-2023 10:46:12
谢谢关注!
BBS微信公众号
BBS微信客服号
BBS微信公众2号
BBS微信公众3号
客服号
公众号
返回顶部
返回列表